Жителі Затуриного вважають злочинними плани розширити кладовище біля Полтави

Мешканці села Затурине зібрали десятки підписів на вимогу скасувати ухвалення рішення про розширення місцевого цвинтаря на 38 га. Вони хочуть провести громадські слухання й створити робочу групу з цього питання.
Про це відомо зі звернення місцевих мешканців до Полтавського міського голови Олександра Мамая, виконавчого комітету, депутатів полтавської міської ради тощо.
З отриманого ЗМІСТом документу відомо, що мешканці категорично проти розширення меж кладовища, бо й нинішній цвинтар перебуває в необлаштованому стані протягом десятиліть. Місцеві акцентують на відсутності огорожі, сміттєвих контейнерів та якісної дороги. Натомість вони отримують обіцянки від влади, що ці проблеми виправлять, але роками ситуація не змінюється.

У зверненні пишуть, що в травні 2022 року зафіксували порушення меж санітарно-захисної зони від місць поховань до будинків. Після звернень до «Спецкомбінату похоронно-ритуального обслуговування» ситуація не змінилася:
«Землі, про які йде мова, – це територія колишнього НДІ радгоспу ім. Макаренка, де свого часу вирощували роками дослідні зразки селекційних зразків зернових культур. Після ліквідації радгоспу (багато років) ці площі ніхто не використовував. Дану ділянку використовувати під облаштування кладовища у нинішній ситуації, коли частина аграрних територій країни окупована агресором або забруднена чи замінована, – це злочинне рішення».
Торік мешканці Затуриного зверталися до міської ради з ініціативою впровадити на 30 га землі програму «Сади перемоги», щоб облаштувати тут суд, але отримали відмову. Натомість тут хочуть зробити цвинтар. Жителі Затуриного вважають, що таке рішення буде незаконним:
«Влада забула, що поруч з існуючими кладовищами є будинки на відстані 25-30 м, де мешкають люди. Наш населений пункт не забезпечений водою належної якості, про що вас, я як голову громади та інших посадовців, неодноразово інформували. Якість артезіанської свердловини, побудованої на кладовищі колишнім сільським головою Бубликом не відповідає нормам, не придатна для споживання, що підтверджується дослідженнями».
Свою позицію місцеві закріпили підписами.

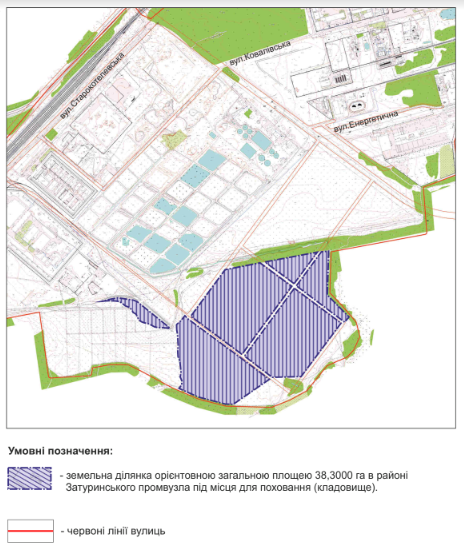
ЗМІСТ писав, що Полтавська міська рада планує виділити 38,3 га землі в районі Затуринського промвузла для влаштування кладовища. Таке клопотання надало комунальне підприємство «Спецкомбінат похоронно-ритуального обслуговування», щоб збільшити площу уже наявного цвинтаря.
