У Полтаві створили 5 нових зелених зон – тепер їх не можна забудовувати

До оновленого переліку зелених зон потрапили території поблизу Горбанівки, Дослідного та у Вакуленцях, Садах-2 і на Червоному шляху.
Тепер локації із зеленими насадженнями перебуватимуть на балансі комунального підприємства «Декоративні культури». Таке рішення ухвалили під час засідання сесії Полтавської міської ради 12 червня.
Раніше у Полтаві було 6 зелених зон, але тепер до їхнього переліку додали:
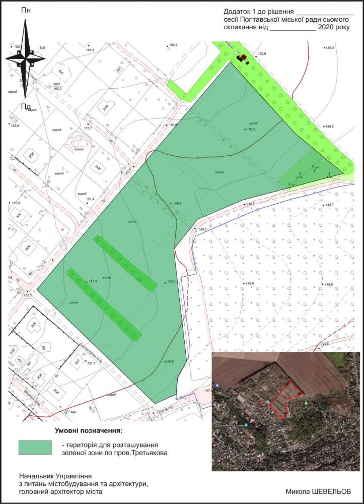
- зелену зону по провулку Третьякова у Київському районі Полтави;
- зелену зону по вул. Нікітченка у Шевченківському районі міста;
- сквер по вул. Довга у Подільському районі Полтави;
- сквер на розі вулиць Лисенка та Паїсія Величковського Подільському районі Полтави;
- зелена зона по вул.Комарова у Шевченківському районі міста.
Визнання цих територій зеленими зонами дозволить вберегти їх від забудови. Зокрема, жителі Горбанівки спеціально зверталися до влади, аби облаштувати парк на території із зеленими насадженнями. Тут вони хочуть власними силами облаштувати парк, але про розвиток інфраструктури мова не йде.
Ще під час комісій депутати міськради неодноразово запитували про те, скільки коштуватиме місту облаштування нових зелених зон, але насправді це не обов’язково. Раніше депутат міськради Вадим Ямщиков розповідав ЗМІСТу, що не кожна зелена зона повинна мати інфраструктуру: лавки, доріжки, фонтани, чи дитячі майданчики. Це означає, що ця територія має бути подібна до природного парку, де люди можуть відпочивати.





Нагадаємо, що в Полтаві відновлять роботу над концепцією Прирічкового парку. Раніше ЗМІСТ розповідав про те, що наразі ситуація із зеленою зоною на Леваді, яку полтавці уже прозвали Прирічковим парком, неоднозначна і незрозуміла. також тут ми писали про те, як громадськість змушує полтавську владу удавати, що їм теж цікавий розвиток цієї території.